Description
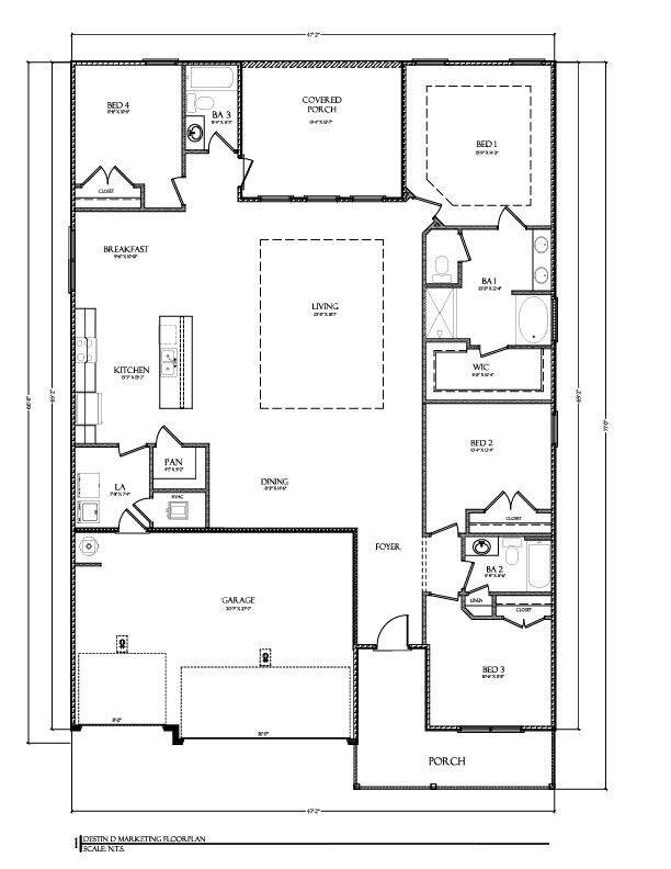
Welcome to 48 Farm Owl Drive, a new home under construction at Owl's Head Farms in Freeport Florida. As you enter this floorplan, you are immediately drawn into the expansive great room, where the open concept design showcases 9' ceilings with additional tray ceilings in the open living room. As you enter the open living space there is an appointed dining room allows for a formal dining option. The kitchen is designed with an open concept and features elegant quartz countertops with white cabinetry to complement. A tile backsplash finishes out this space along with matte black plumbing fixtures. Adjacent to the kitchen, is a dining area that offers a picturesque space for meals, while the huge living area opens to a covered patio, perfect for outdoor entertainment. You'll find elegant, engineered vinyl plank flooring throughout the home allowing a seamless transition between rooms. Off the breakfast area is a guest bedroom with ample closet space and a full bathroom with a shower tub combination. The primary bathroom is situated at the rear of the home off the living area and features trey ceilings and an overhead fan along with a private ensuite. The primary bathroom has a a soaking tub and separate tiled shower with glass enclosure. The dual sink vanity is adorned with quartz countertops and lower cabinetry for storage as well as matte black fixtures. A large closet and separate water closet finish out the primary bathroom. Two additional bedrooms are located off the front entry hall and share a full bathroom.
-
4BEDS
-
0.17ACRES
-
3BATHS
-
01/2 BATHS
-
2,377SQFT
-
$198$/SQFT
School Information
Description
Welcome to 48 Farm Owl Drive, a new home under construction at Owl's Head Farms in Freeport Florida. As you enter this floorplan, you are immediately drawn into the expansive great room, where the open concept design showcases 9' ceilings with additional tray ceilings in the open living room. As you enter the open living space there is an appointed dining room allows for a formal dining option. The kitchen is designed with an open concept and features elegant quartz countertops with white cabinetry to complement. A tile backsplash finishes out this space along with matte black plumbing fixtures. Adjacent to the kitchen, is a dining area that offers a picturesque space for meals, while the huge living area opens to a covered patio, perfect for outdoor entertainment. You'll find elegant, engineered vinyl plank flooring throughout the home allowing a seamless transition between rooms. Off the breakfast area is a guest bedroom with ample closet space and a full bathroom with a shower tub combination. The primary bathroom is situated at the rear of the home off the living area and features trey ceilings and an overhead fan along with a private ensuite. The primary bathroom has a a soaking tub and separate tiled shower with glass enclosure. The dual sink vanity is adorned with quartz countertops and lower cabinetry for storage as well as matte black fixtures. A large closet and separate water closet finish out the primary bathroom. Two additional bedrooms are located off the front entry hall and share a full bathroom.
Related Properties
© 2025 Emerald Coast Association of Realtors MLS. All rights reserved. IDX information is provided exclusively for consumers' personal, non-commercial use and may not be used for any purpose other than to identify prospective properties consumers may be interested in purchasing. Information is deemed reliable but is not guaranteed accurate by the MLS or Rosemary Beach Realty, LLC. Vendor Member number: 28178. Data last updated: 2025-12-07T23:00:23.603.
Vendor Member #28178.
