Description
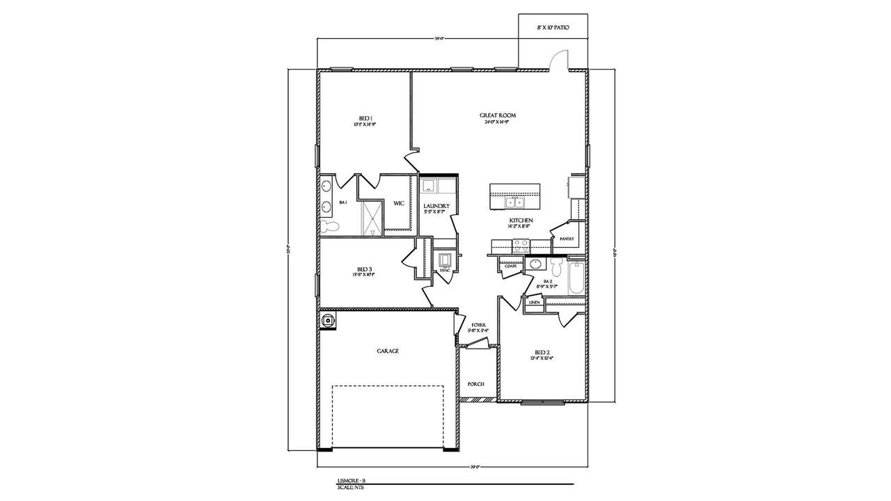
Welcome to 227 Eunola Lane, a new home in Phase III at Ashton Park in Freeport, Florida. As you enter this home you are immediately struck by its clean lines and thoughtful design. The foyer opens to a bright and airy space, with two secondary bedrooms and a full bathroom tucked off to one side. These rooms are perfectly sized with each offering plenty of closet space and easy access to the shared bath. This home features a seamless living space with EVP and carpet in the bedrooms. Continuing into the heart of the home, you will find an open concept living area. Here, the kitchen is open to the living area and features granite countertops, stainless steel appliances, and an island with a breakfast bar that creates the perfect spot for casual dining or entertaining. The adjoining dining area is well-positioned for family meals, while the living room offers a comfortable space to relax, complete with views of the backyard. The laundry room is off the kitchen and is complete with extra storage shelves. Privately located at the back of the home, the primary bedroom offers a peaceful retreat. The large bedroom is complemented by an ensuite bathroom, featuring a dual vanity, a large shower, and an expansive closet designed for all your wardrobe needs. The patio at the back of the home provides the perfect place to enjoy outdoor living. For more information on the Lismore floor plan, give us a call today!
-
3BEDS
-
N/AACRES
-
2BATHS
-
01/2 BATHS
-
1,580SQFT
-
$0$/SQFT
School Information
Description
Welcome to 227 Eunola Lane, a new home in Phase III at Ashton Park in Freeport, Florida. As you enter this home you are immediately struck by its clean lines and thoughtful design. The foyer opens to a bright and airy space, with two secondary bedrooms and a full bathroom tucked off to one side. These rooms are perfectly sized with each offering plenty of closet space and easy access to the shared bath. This home features a seamless living space with EVP and carpet in the bedrooms. Continuing into the heart of the home, you will find an open concept living area. Here, the kitchen is open to the living area and features granite countertops, stainless steel appliances, and an island with a breakfast bar that creates the perfect spot for casual dining or entertaining. The adjoining dining area is well-positioned for family meals, while the living room offers a comfortable space to relax, complete with views of the backyard. The laundry room is off the kitchen and is complete with extra storage shelves. Privately located at the back of the home, the primary bedroom offers a peaceful retreat. The large bedroom is complemented by an ensuite bathroom, featuring a dual vanity, a large shower, and an expansive closet designed for all your wardrobe needs. The patio at the back of the home provides the perfect place to enjoy outdoor living. For more information on the Lismore floor plan, give us a call today!
Related Properties
© 2026 Emerald Coast Association of Realtors MLS. All rights reserved. IDX information is provided exclusively for consumers' personal, non-commercial use and may not be used for any purpose other than to identify prospective properties consumers may be interested in purchasing. Information is deemed reliable but is not guaranteed accurate by the MLS or Rosemary Beach Realty, LLC. Vendor Member number: 28178. Data last updated: 2026-02-14T20:00:32.007.
Vendor Member #28178.
